|
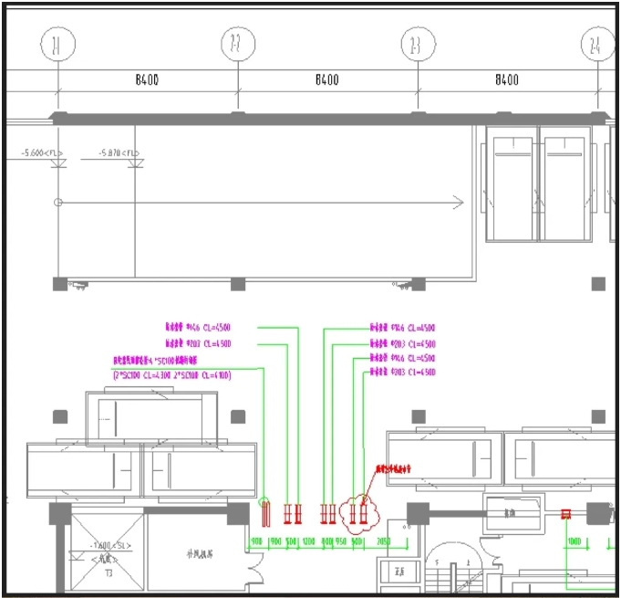
牛!高达99.99%的应用率!BIM技术在预埋套管施工中的高效落地预埋套管的重要性 预埋件、预埋套管和预留洞是工程中不可缺少的部分,预埋位置的准确性将直接影响后续施工进度与工程质量。因此,在施工过程中分阶段采取一定的措施,确保预埋件、预埋套管和预留洞的位置、数量的准确以及尺寸大小符合规范要求,是保证后续施工顺利进行的关键,而BIM技术的介入,让此项工作变得更加便捷可靠! 本工程地下为框架结构,地上为钢框架,业主对于工期和质量要求非常高。在前期深化阶段,我司BIM团队积极与设计院、业主、总包单位对接沟通,根据业主要求,及时调整,保证深化设计成果的准确性和及时性。在预留预埋方面,主要解决2方面的问题:一方面验证图纸上原设计的预埋是否合理,另一方面针对不合理的位置,及时调整预埋定位,保证后续管线施工的便利性和美观性。 目前项目预留预埋已全部施工完成,机电施工单位进场准备进行样板区安装。我司作为BIM深化单位,在现场实时跟进,配合现场机电管线顺利安装。经现场实地复核,现场预留预埋施工情况,与BIM图纸、BIM模型高度一致,为后续机电安装顺利开展奠定了良好的基础。 重点来啦~我司做的BIM管综优化方案,现场应用达到了99%以上,现场跟图纸就是一模一样的!牛的!下面来详细看一下~ 预留洞深化图纸+BIM模型+施工现场实拍图片 请看现场实拍图片
预留洞深化图纸+BIM模型+施工现场实拍图片
预留洞深化图纸+BIM模型+施工现场实拍图片
预留洞深化图纸+BIM模型+施工现场实拍图片
预留洞深化图纸+BIM模型+施工现场实拍图片
预留洞深化图纸+BIM模型+施工现场实拍图片
预留洞深化图纸+BIM模型+施工现场实拍图片
预留洞深化图纸+BIM模型+施工现场实拍图片
预留洞深化图纸+BIM模型+施工现场实拍图片
预留洞深化图纸+BIM模型+施工现场实拍图片 |
















